Utbyggnad i Brevik

Projektstart

2025 -

Plats

Brevik, Tyresö

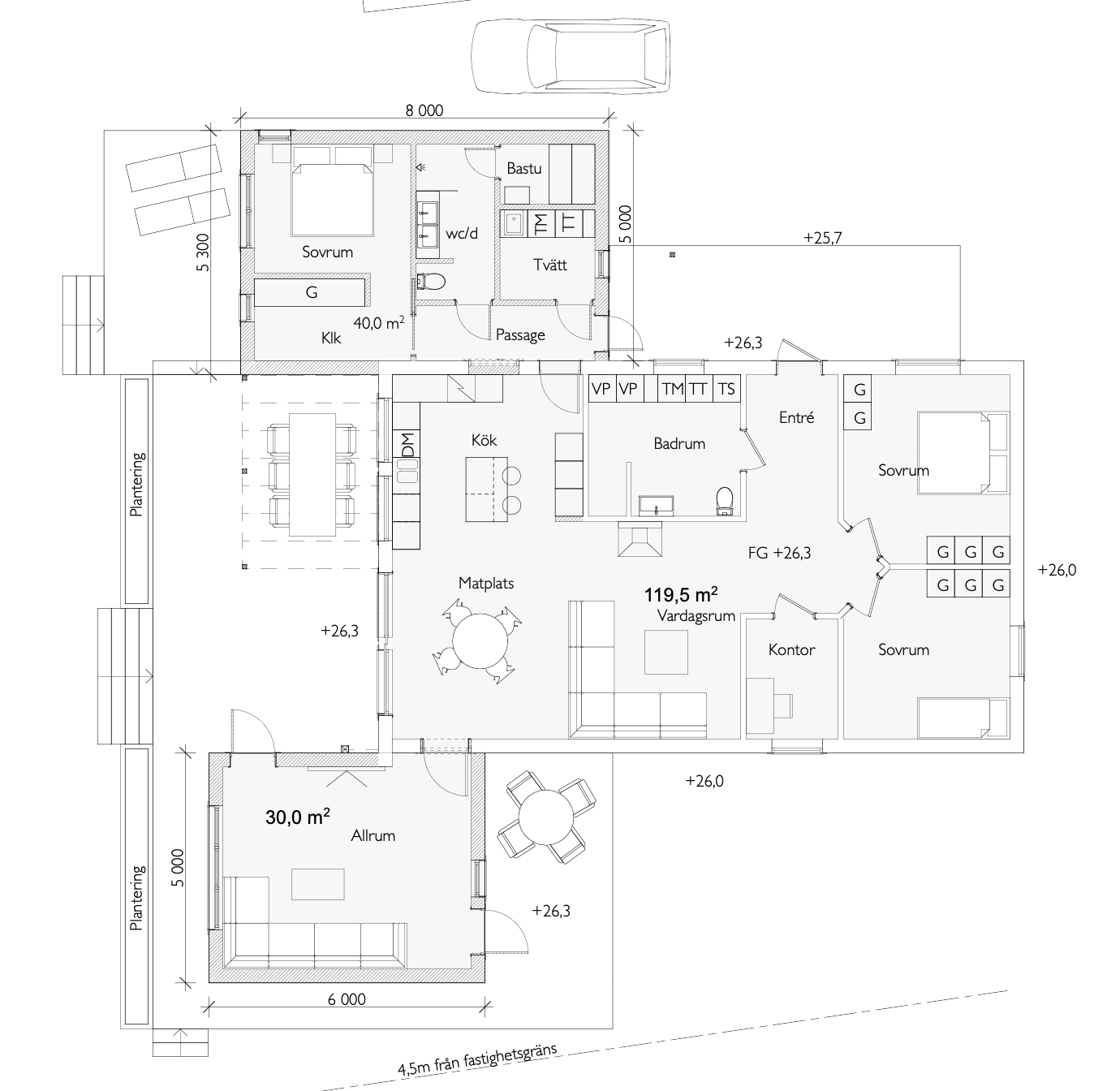
En tillbyggnad i startgropen. En ny detaljplan har antagits som medger nästintill en fördubbling av tillåten yta jämfört med dagslägets. Förslag har här därför tagits fram på utbyggnad för att få till ett större sovrum med walk-in-closet, ett stort generöst badrum nära inpå och en ny tvättstuga. I andra änden av huset finns önskemål om ett extra allrum.

Tak och trappor är alltid de klurigaste delarna att få till, här slapp jag trappan visserligen men hur taken skulle sammanfogas blev en knäckfråga. Det handlar inte bara om utseende utan även om funktionalitet, hållbarhet och krav på underhåll. I detta fallet blev det dock finast att addera två sadeltak i varsin ände och så länge man är noggrann med anslutningen ska det inte vara något problem.

Det återstår att se hur huset ska forma sig genom skissprocessen innan det är dags för bygglov!

Bilder från projektet

Koia Arkitektur är ett personligt arkitektkontor som skapades ur ett intresse av andras hem och glädjen över att få hjälpa människor som er att nå era drömmar och visioner.

Följ mig på sociala medier!

Kontaktuppgifter