Om- och tillbyggnad i Saltsjö-boo

Projektstart

2025-

Plats

Saltsjö Boo, Nacka

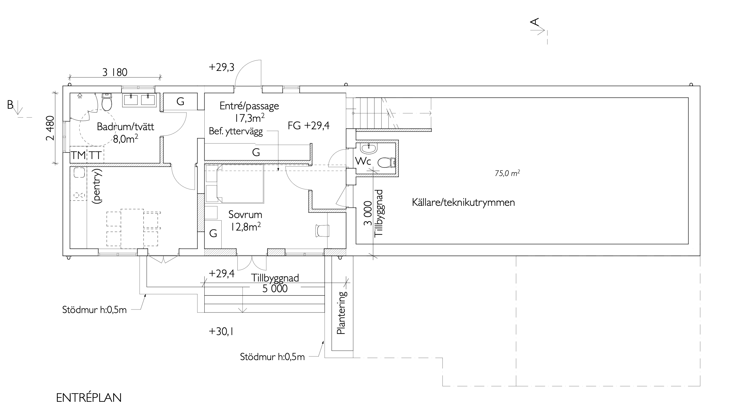
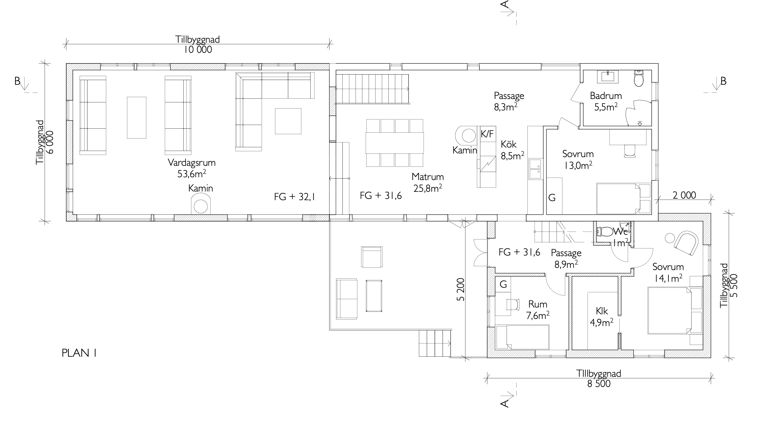
Från ett fritidshus i olika lager till en genomtänkt och planerad villa. Området har fått en ny detaljplan tillsammans med kommunalt v/a som nu möjliggör fullstora villor i denna del av Saltsjö boo i Nacka. För att maxa utsikten mot Baggensfjärden ritades en takterrass in på den nya tillbyggnaden. En tidigare komplementbyggnad kopplas ihop med bostadshuset genom ny entré och en extra våning. Huset följer bergets nivåer och binder ihop inne och utemiljöer på ett fint sätt.

Bygglovet godkändes hösten 2025 och förväntas påbörjas våren 2026.

Bilder från projektet

Koia Arkitektur är ett personligt arkitektkontor som skapades ur ett intresse av andras hem och glädjen över att få hjälpa människor som er att nå era drömmar och visioner.

Följ mig på sociala medier!

Kontaktuppgifter