Tillbyggnad i Älvsjö

Projektstart

2024 -

Plats

Älvsjö, Stockholm

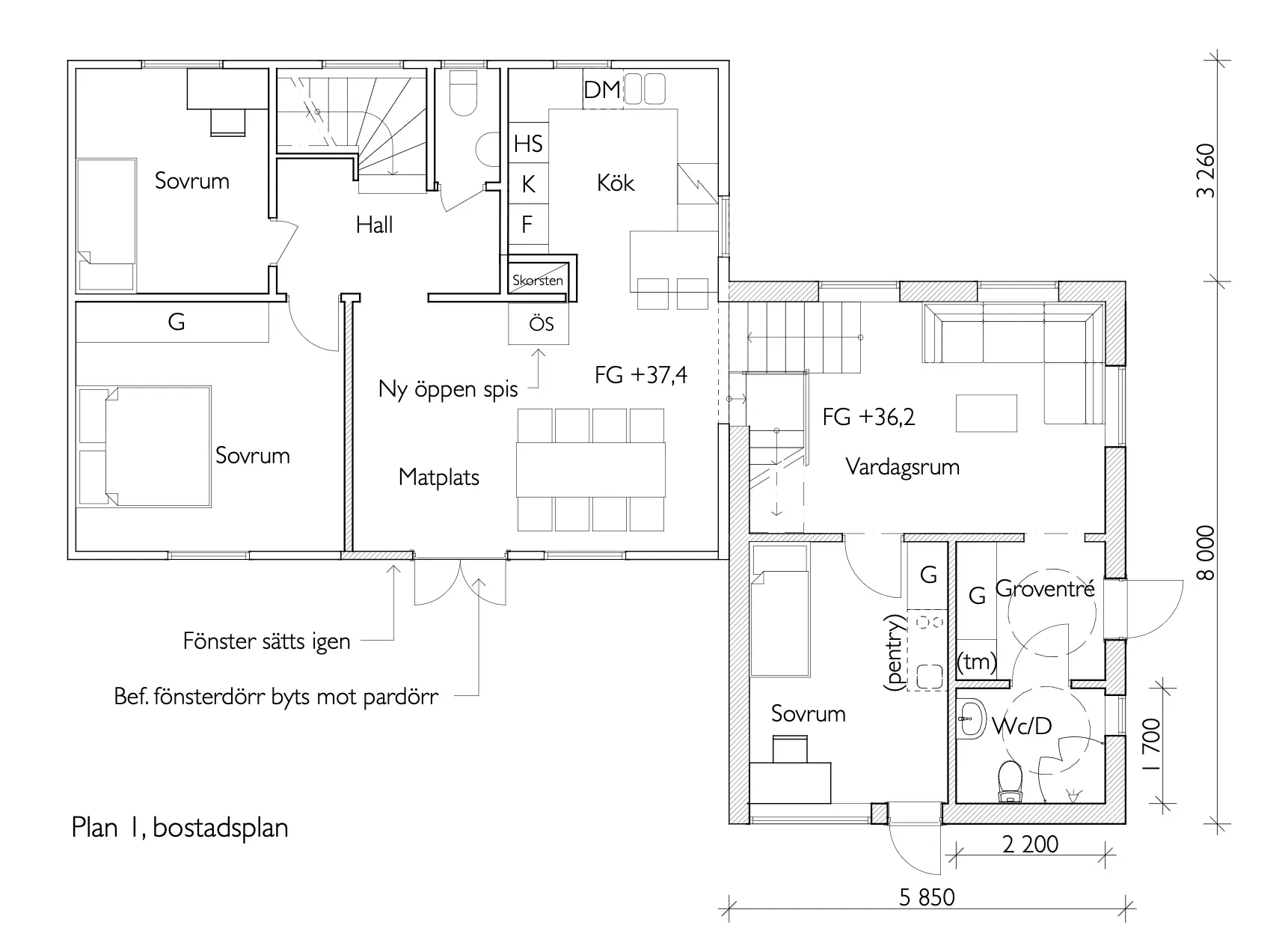
En tillbyggnad i färg! Ursprungshuset är från 1943 och det faktum att det ligger i Stockholms kommun gjorde det hela till en väldigt långdragen bygglovsprocess. Kommunen är, med all rätt, mån om det kulturhistoriska arvet och all till- och ombyggnad ska ske med varsamhet till omgivningen. Vi har därför fått rita om och gjort helomvändningar några gånger tills handläggarna gav ett enhälligt positivt betyg. Det hela landade i en funkisinspirerad tillbyggnad i 1,5plan. Tillbyggnaden och det nya köket andas färg och kul(!), spännande rumsligheter och fina invändiga detaljer.

Det ska bli så kul att få stiga in och uppleva parets sinne för färg, inredning och bevarande!

Bilder från projektet

Koia Arkitektur är ett personligt arkitektkontor som skapades ur ett intresse av andras hem och glädjen över att få hjälpa människor som er att nå era drömmar och visioner.

Följ mig på sociala medier!

Kontaktuppgifter