Fritidshus i Strängnäs

Projektstart

2024-2026

Plats

Stallarholmen, Strängnäs

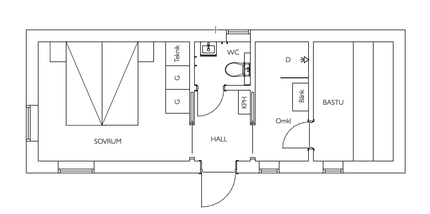
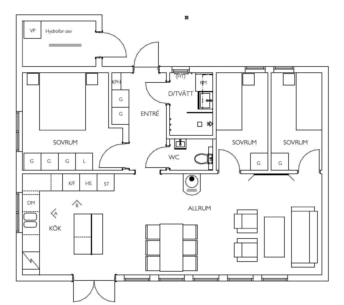
Ägarna hade precis köpt en avstyckad tomt och hörde av sig med önskemål på ritningar för ett nytt fritidshus. Tomten ligger granne med en stor äng och inte långt ifrån sjön. Det hela resulterade i ett lite större huvudhus med tre sovrum, dusch, wc, kök och vardagsrum samt ett externt gästhus med sovrum och bastu. Husen är placerade vinkelrätt mot varandra med en stor altan som binder dem samman.

Efter att utformningen stod klar skickade kunden ritningen till ett husföretag som sedan justerade måtten på fönster och väggar en aning efter deras egna system. Markarbeten påbörjades vintern 2025/26 och huset beräknas stå klart under 2026. Jag fick även i uppdrag att ta fram en rumsbeskrivning där jag angett kulörer, material och all fast inredning så som kök- och badrumsinredning, garderober och klädhängare.

Allt för en smidig upphandling och byggprocess. Ser fram emot att besöka denna semesterpärla!

Bilder från projektet

Koia Arkitektur är ett personligt arkitektkontor som skapades ur ett intresse av andras hem och glädjen över att få hjälpa människor som er att nå era drömmar och visioner.

Följ mig på sociala medier!

Kontaktuppgifter