Om- och tillbyggnad i Tyresö

Projektstart

2025-

Plats

Skälsätra, Tyresö

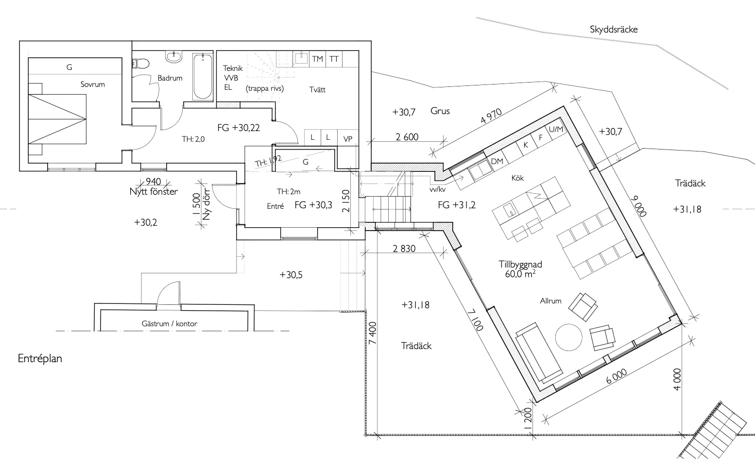
En villa som började som fritidshus och som sedan byggts på i omgångar ska få ännu en utbyggnad. Denna gång har vi tagit ett helhetsgrepp! Köket flyttas till utbyggnaden och trappan flyttas till ett ”trapphus” som bygger ihop den nya volymen med den gamla. Detta gör plats till två nya sovrum på ovanvåningen och en stor tvättstuga i entréplan. Balkongen som gick runt huset på andra våningen tas bort och ersätts med ett större trädäck runt utbyggnaden. Trädäcket knyter ihop huset med det uthus som finns sedan tidigare och från altanen placeras en trappa för att nå den nedre delen av tomten på ett naturligt sätt.

Huset kommer nu ”landa” och bjuder in till att använda en del av tomten som tidigare känts oanvändbar och avskärmad.

Markarbeten började vintern 2025 och bygget väntas påbörjas i 2026, spännande!!

Bilder från projektet

Koia Arkitektur är ett personligt arkitektkontor som skapades ur ett intresse av andras hem och glädjen över att få hjälpa människor som er att nå era drömmar och visioner.

Följ mig på sociala medier!

Kontaktuppgifter