Ny villa i Brevik

Projektstart

2023 -

Plats

Brevik, Tyresö

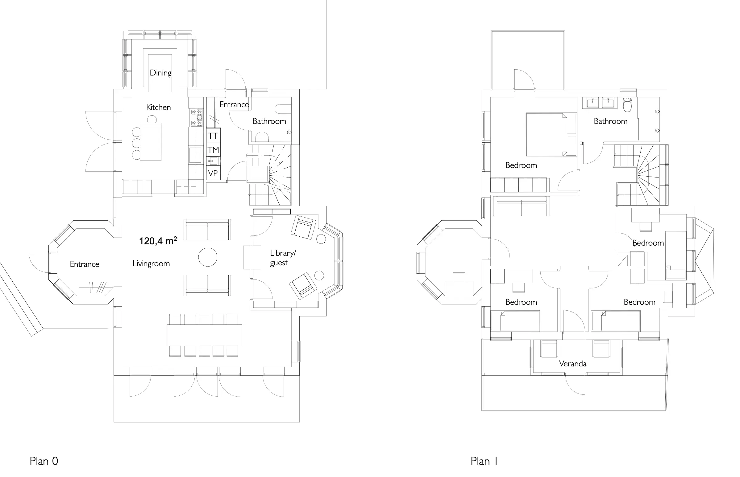
På samma plats står idag ett gammalt fritidshus som inte har mycket kvar att ge. I detta fall föll valet på att riva och bygga nytt. Paret som ska bygga gav mig en gedigen och genomtänkt skriftlig presentation som berättade om vilka de är, vad deras intressen är, hur en perfekt dag i deras liv ser ut, vilka framtidstankar som finns och vilken stil de gillar. Detta tillsammans med flera referensbilder på naturliga och rustika material, flera takformer, ett bibliotek med öppen spis och ett ”harry potter torn” för personliga saker som samlats ihop genom åren. Det var verkligen en rolig utmaning att få ihop allt men det gjorde det också lätt när de var så pass specifika. Vad de trodde var ett kaos av idéer blev en tydlig bild för mig och vi hittade mitt i prick nästan direkt!

Villaprojektet ligger vilande på grund av ekonomiska förutsättningar och en ökning av familjen som tar mycket tid och energi såklart! Men en dag kanske drömmen blir verklighet!

Bilder från projektet

Koia Arkitektur är ett personligt arkitektkontor som skapades ur ett intresse av andras hem och glädjen över att få hjälpa människor som er att nå era drömmar och visioner.

Följ mig på sociala medier!

Kontaktuppgifter