Utbyggnad med utsikt!

Projektstart

2025 -

Plats

Brevik, Tyresö

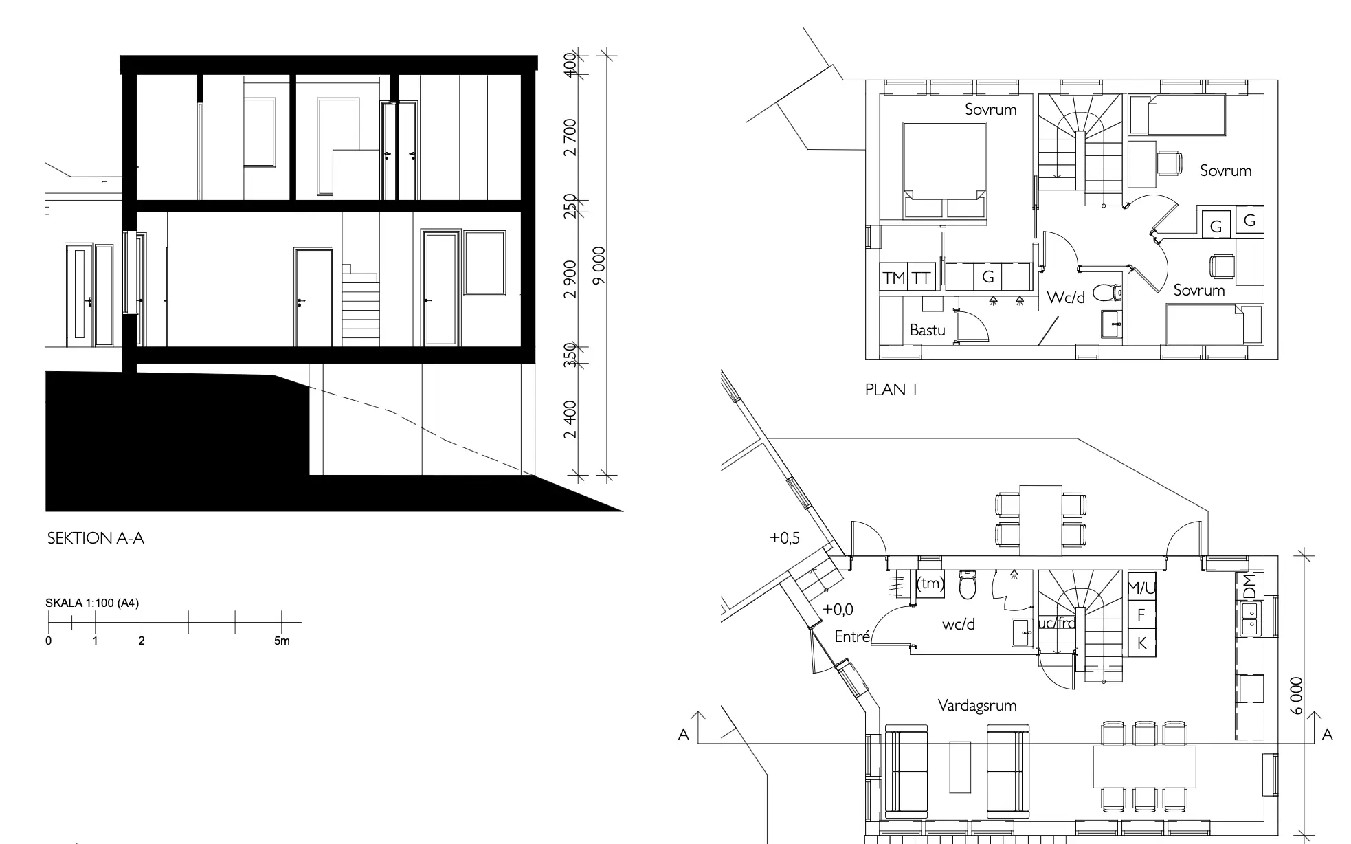
En tillbyggnad som smidigt väver ihop gammalt och nytt. Högt beläget med vattenvy både åt väst och öst ger den här tillbyggnaden möjlighet till fantastiska vyer på en ovanvåning!

Den nya delen är kubiskt formad i två plan för att maxa invändig volym och möjliggöra för carport under huskroppen och takaltan. Det gamla huset från 80talet uppgraderas med ny fasad, fönster och tak för att smälta samman med tillbyggnaden och sänka uppvärmningsbehovet som funnits från fritidshusstandarden.

Projektet är i startgropen och det ska bli spännande att se vart det leder före det är dags

för bygglov!

Bilder från projektet

Koia Arkitektur är ett personligt arkitektkontor som skapades ur ett intresse av andras hem och glädjen över att få hjälpa människor som er att nå era drömmar och visioner.

Följ mig på sociala medier!

Kontaktuppgifter